Appartamento Via Saffi ter Strada Aurelio Saffi
Dettagli Proposta
Descrizione Proposta
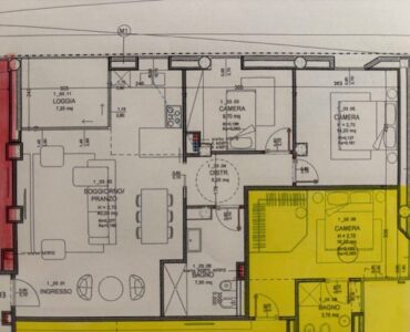
Scopri questo splendido appartamento in vendita, situato nel cuore del centro storico di Parma. A pochi passi da Piazza Duomo e Strada della Repubblica, questa nuova costruzione di elevato pregio architettonico offre un’esperienza di vita unica. Affacciato sul verde, l’appartamento al primo piano è luminoso e accogliente, grazie alla sua esposizione e alle ampie finestre. L’immobile è composto da un ampio soggiorno/pranzo con loggia abitabile verso un giardino interno, ideale per godere di una pausa all’aria aperta, cucina a vista, due camere da letto ed un bagno. Inoltre, la comodità dell’autorimessa al piano terreno rende questo appartamento ancora più pratico .La costruzione è progettata con un’impronta green e dotata di riscaldamento a pavimento e aria condizionata, garantendo un comfort ottimale in ogni stagione. Con una classe energetica A4, l’efficienza energetica è assicurata. C’è anche la possibilità di personalizzare la distribuzione interna e il capitolato, rendendo questo appartamento davvero unico. Non perdere l’opportunità di vivere in uno dei luoghi più affascinanti di Parma. Contattaci per maggiori informazioni e per organizzare una visi














